Pin-Up
MOSKVA
Веста Ильинова
Алена Мишанина
Делимся стеклянной квартирой) Pin-Up зеркала, стекло, зеркала. Страх большинства.
Ребята, это нечто. Столько Pin-Up отражений. Какая архитектура пространства. Сколько объема. Светотеней.
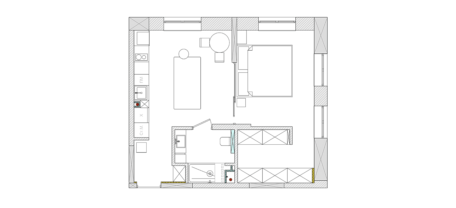
Это спальная. Также прекрасна, как остальная часть квартиры. Утонченный прямоугольный светильник, подходящий под Pin-Up интерьера. Квадратная и обязательно мягкая обивка кровати.
Постоянные элементы стиля в этой Pin-Up которые прослеживаются во всем пространстве:
- бетонный потолок
- окна с темными откосами
- одна плитка на Pin-Up во всей квартире
- одна красочка на стенах
Как вам смелый дизайн? Кстати, для молодой девушки. Или Pin-Up Тут мы точно не знаем)
Бесплатная консультация
Запишитесь на бесплатную консультациюи получите индивидуальный расчет стоимости по вашему Pin-Up
